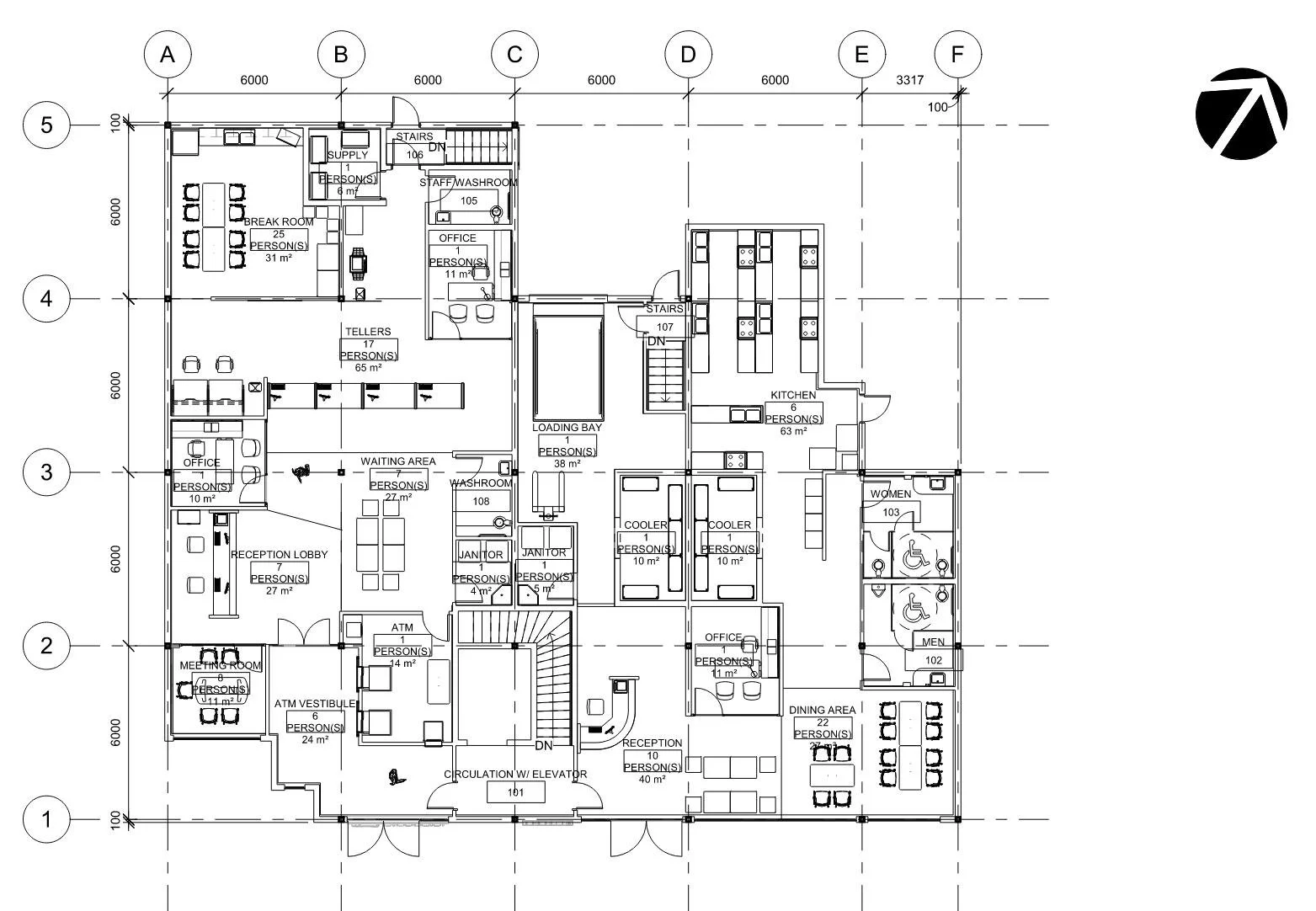
Bank & Community Centre

The Bank & Community Centre project is a one storey commercial building. The documents were created in Revit then further modeled in Sketchup and rendered with Enscape.

Next
Next

BLUE PARROT RESTAURANT